固定型ジブクレーン解体
STEP1
① 旋回フレーム振れ止め(転倒防止策、チェーンブロック×4set)
② ウェイト部に転倒防止対策(敷鉄板+山留材+マルチベントセット)
③ 旋回フレーム溶接固定(浮き上がり防止策、旋回フレームとローラーパス溶接【H型鋼×4set】)
④ ウェイト部の内容物確認、抜油作業
⑤ ジブフックブロックのワイヤーを固定
⑥ ジブフックブロックのワイヤーを切断、撤去


STEP2
⑦ 機械室の屋根一部を吊り撤去
⑧ 機械室内設備(ウィンチ、減速機等)の吊り撤去
⑨ ジブ先端部仮吊り
STEP3
⑩ テンションバー吊り撤去


STEP4
⑪ 仮吊りしたジブの先端を水平の位置まで下げる。
⑫ 160tクレーンにて旋回フレーム側のジブの玉掛を行う。
⑬ ジブの根元をガス切断し、ジブ(運転席含)を合吊りにて地上に下ろす。
STEP5
⑭ 残機械室、ウェイト部吊り撤去
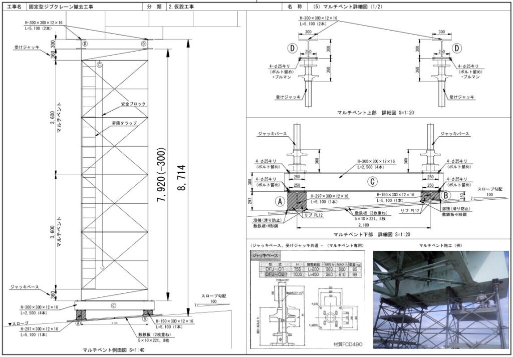
⑮ マルチベントばらし


STEP6
⑯ 旋回フレーム・センターポスト、吊り撤去
STEP7
⑰ タワー吊り撤去、地上にて脚部切断、2次切断、スクラップ搬出、解体完了


